瑞安市天蓝环保设备官方网站
扫一扫立即查看SJ型双轴加湿搅拌机产品介绍:
SJ型双轴加湿搅拌机是将粉状物料进行喷水搅拌,混合的高效设备。主要使用在火力发电厂的除尘器下,也可供化工冶金、矿山、建材等行业使用。采用两组螺旋叶片进行搅拌,具有搅拌效率高,占地面积小。螺旋叶片采用高耐磨特种合金或复合陶瓷,使用寿命长等特点。
双轴搅拌机采用摆线针轮减速器传动,传动平稳,噪音低。双轴搅拌机从顶部进料,底部排料,结构合理。
各结合面之间的密封严密,运行平稳。
双轴搅拌机没有加湿喷水系统,保证喷水均匀,调节供水量以达到合适的湿度要求。
采用手压油泵集中供给四个传动轴承润滑油脂,方便设备的使用维护,具有高效,省时的优点。
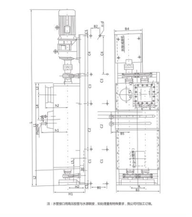
SJ型双轴加湿搅拌机示意图:



SJ型双轴加湿搅拌机技术参数:



瑞安市天蓝环保设备有限公司主营:卸料器、卸灰阀、旋转阀、关风机、卸料阀、叶轮给料机、星型卸料器、刀型闸阀、插板阀等系列产品,“天蓝环保、净化全球”,客服热线:0577-65007068


浙ICP备16043010号-4